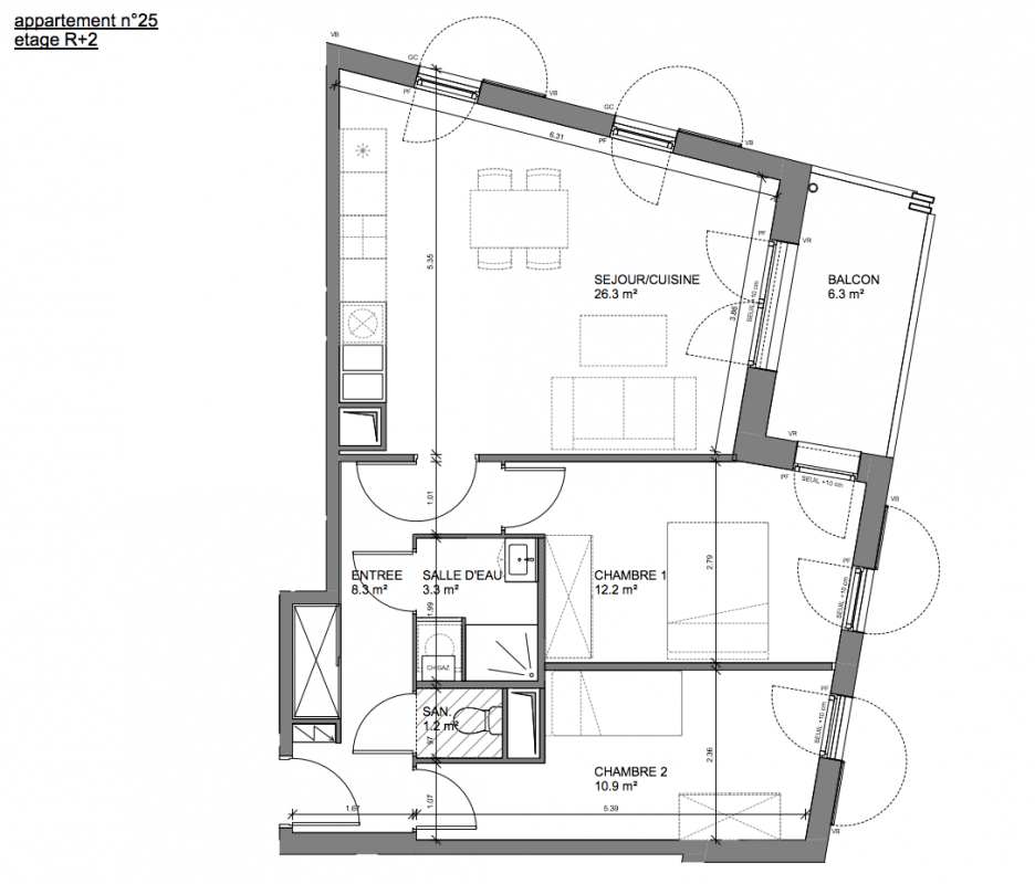
Prix
245 000€
Type
Appt. au 2ème
Pièces
T3
Surface
62.08 m²
Exposition
-
Ville
Biganos (33380)
Livraison
2ème trimestre 2024
Informations
01 81 80 39 10

Présentation du programme "LES COTTAGES"

LES PRESTATIONS : 

Résidence sécurisée
Parking sécurisé
Peinture lisse
Parquet dans les chambres
Carrelage 45x45 dans les pièces humides
Menuiserie Haute performance
Balcon / Terrasse

Autres logements T3 du programme "LES COTTAGES"

Disponibilité Prix Genre Pièces Surface Étage
Voir
Disponible
250 000€ Appt. T3 62.07m2 3ème
DO NOT CLICK