Prix
221 400€
Type
Appt. au 1er
Pièces
T2
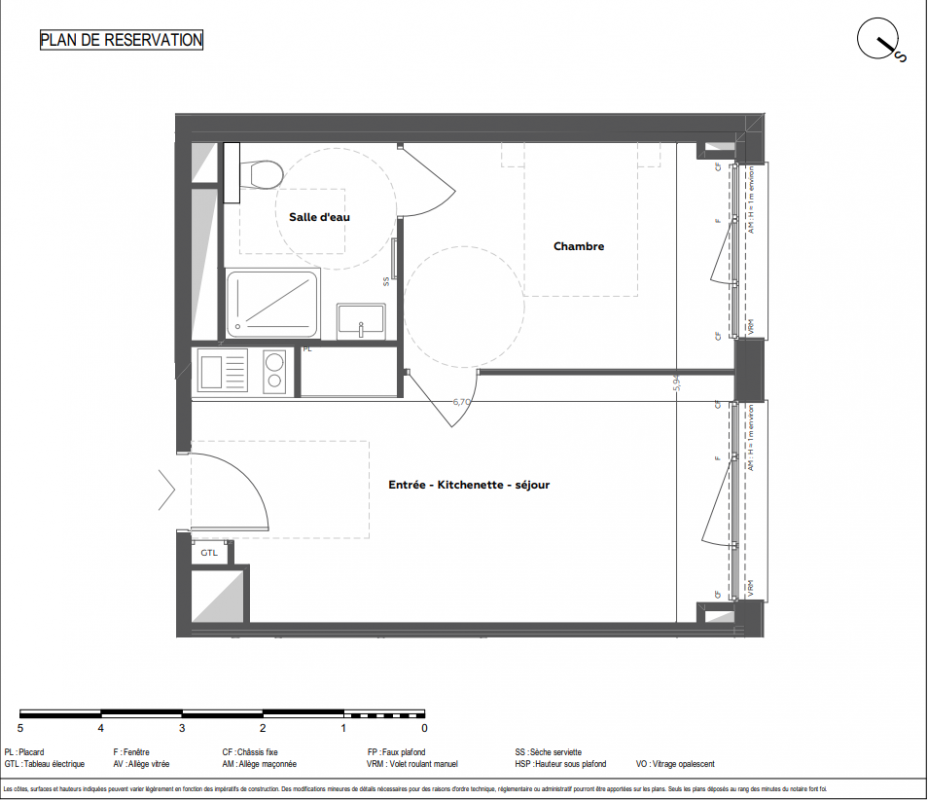
Surface
35.94 m²
Exposition
-
Ville
Bordeaux (33000)
Livraison
3ème trimestre 2027
Informations
01 81 80 39 10

Présentation du programme "KLEEZI | THIERS BORDEAUX"

[ SPÉCIAL INVESTISSEURS ] – BORDEAUX – AVENUE THIERS – Découvrez KLEEZI I BORDEAUX THIERS, une résidence étudiante et jeunes actifs haut de gamme, idéalement située avenue Thiers, au cœur du quartier prisé et en pleine transformation de La Bastide. Ce programme immobilier neuf associe prestations soignées, emplacement stratégique et potentiel locatif solide, constituant une opportunité pertinente de placement en LMNP pour sécuriser et diversifier votre patrimoine.

KLEEZI I BORDEAUX THIERS repense le logement étudiant avec des espaces modernes, meublés et aménagés avec soin, conçus pour le confort et le bien-être des résidents, tout en s’inscrivant pleinement dans la vie du quartier. Un cadre de vie qualitatif, en adéquation avec les attentes actuelles des étudiants et jeunes actifs.

Avec plus de 100 000 étudiants et un marché locatif particulièrement tendu, Bordeaux s’impose comme une place universitaire de premier plan. La résidence bénéficie d’une adresse recherchée, à proximité des universités, des commerces et des transports en commun, favorisant un taux d’occupation élevé et une rentabilité optimisée pour les investisseurs.

Avec le PACK LAMOTTE, vous bénéficiez :
> d’un mobilier entièrement fourni,
> d’une gestion locative et comptable sur mesure**,
> d’un accompagnement bancaire pour vos solutions de financement.

Une opportunité d’investissement structurée dans un secteur durablement porteur.

* Voir les conditions sur la page Mentions légales de notre site Vianova.fr
** Gestion comptable par un cabinet offerte la première année.

Contactez dès maintenant nos conseillers Lamotte à BRUGES ou rendez-vous sur LAMOTTE.FR pour en savoir plus.
* Voir les conditions sur la page mentions légales de notre site Vianova.fr
** Gestion comptable par un cabinet offerte la première année.

Autres logements T2 du programme "KLEEZI | THIERS BORDEAUX"

Disponibilité Prix Genre Pièces Surface Étage
Voir
Disponible
226 400€ Appt. T2 35.94m2 2ème
DO NOT CLICK