Prix
83 696€
83 696€
Type
Appt. au 2ème
Appt. au 2ème
Pièces
-
-
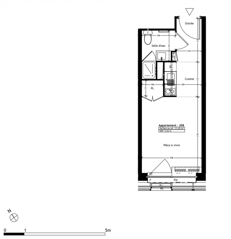
Surface
21.02 m²
21.02 m²
Exposition
Sud-Ouest
Sud-Ouest
Ville
Bordeaux (33000)
Bordeaux (33000)
Livraison
3ème trimestre 2018
3ème trimestre 2018
Informations
01 81 80 39 10
01 81 80 39 10
Présentation du programme "Nouveau Monde - MS"
- Au coeur du quartier d’affaires, en bordure de la Garonne, sur le quai de Paludate.
- Un environnement de grande qualité architecturale et composé de commerces, hôtels et bureaux.
- Face à la Maison de l’Economie créative et de la Culture en Aquitaine, (pôle culturel de Bordeaux) et à quelques mètres du siège de la Caisse d’Epargne Aquitaine - Poitou Charentes.
- A proximité immédiate de la gare TGV, du tramway et de la rocade bordelaise.