Prix
820 000€
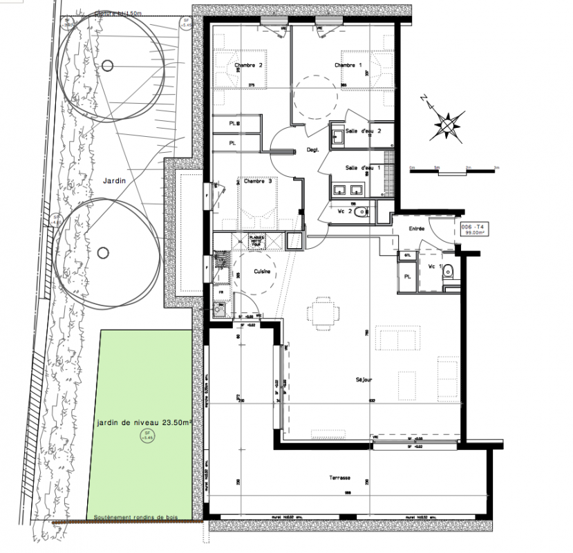
Type
Appt. au 0-RDC
Pièces
T4
Surface
98.45 m²
Exposition
Sud
Ville
Capbreton (40130)
Livraison
3ème trimestre 2026
Informations
01 81 80 39 10

Présentation du programme "BAÏNA"

Démarrage travaux. Au bord de l’Océan Atlantique, Capbreton séduit par son port pittoresque, son centre dynamique et ses plages de sable fin.
La résidence BAÏNA bénéficie d’une localisation de choix, à deux pas de la plage du Santocha et du centre-ville. Elle profite de la quiétude d’un charmant quartier résidentiel.
BAÏNA, à l’architecture élégante, empreinte d’influences landaises, propose une collection d’appartements du 2 au 5 pièces aux beaux volumes et aux prestations raffinées. Chaque logement dispose d’un espace extérieur, offrant ainsi une extension naturelle à votre habitat.
Pour votre confort, l’ensemble des appartements dispose d’une place de parking sécurisée attirée.
N’attendez plus pour obtenir plus d’informations !

Autres logements T4 du programme "BAÏNA"

Disponibilité Prix Genre Pièces Surface Étage
Voir
Disponible
805 000€ Appt. T4 98.43m2 1er
Voir
Disponible
800 000€ Appt. T4 96.62m2 2ème
DO NOT CLICK