Ce lot n’est plus disponible chez VIANOVA ou est vendu.
Vous pouvez revenir dans 24h pour vérifier le stock à jour ou contacter un conseiller Vianova pour vérifier le stock en direct.
Vous pouvez également continuer votre recherche sur notre site « ici ».
64 910€
400 000€
- €
400 000€
- €
Type
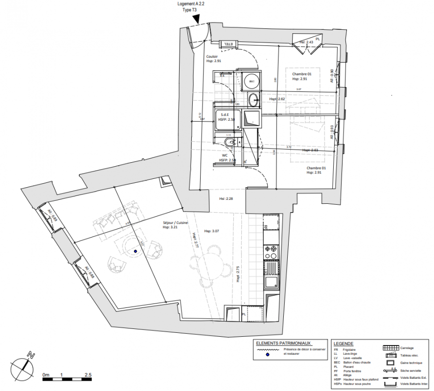
Appt. au 2ème
Appt. au 2ème
Pièces
T3
T3
Surface
71.8 m²
71.8 m²
Exposition
Sud
Sud
Ville
Nîmes (30000)
Nîmes (30000)
Livraison
4ème trimestre 2026
4ème trimestre 2026
Informations
01 81 80 39 10
01 81 80 39 10
Présentation du programme "CARRE MITHRAS"
À quelques dizaines de kilomètres de la mer Méditerranée et des montagnes des Cévennes, Nîmes se trouve sur l’axe reliant la basse vallée du Rhône à la plaine languedocienne et sur l’arc méditerranéen. Au coeur des flux, Nîmes jouit d’une position stratégique. Sa localisation, lui confère une proximité avec les métropoles Méditerranéennes et de la Vallée du Rhône.
Le Carré Mithras offrira bientôt 21 appartements aux prestations de qualité. Idéalement placé à proximité immédiate des commodités et agrémenté d’une cour intérieure végétalisée, ses futurs résidents profiteront d’un confort de vie enchanteur en coeur de ville.
Autres logements T3 du programme "CARRE MITHRAS"
| Disponibilité | Prix | No | Genre | Pièces | Surface | Étage | Disponibilité | Prix | ||
|---|---|---|---|---|---|---|---|---|---|---|
| Voir | Optionné | 405 400€ | B1.1 | Appt. | T3 | 77.2m2 Le bon plan | 1er | Optionné Mais pas encore vendu 😉 | 405 400€ Prix foncier 52 700€ Prix travaux 352 700€ | Voir |
| Voir | Disponible | 426 100€ | B2.2 | Appt. | T3 | 71.4m2 | 2ème | Disponible | 426 100€ Prix foncier 55 400€ Prix travaux 370 700€ | Voir |
| Voir | Disponible | 399 400€ | A1.2 | Appt. | T3 | 70.49m2 | 1er | Disponible | 399 400€ Prix foncier 51 900€ Prix travaux 347 500€ | Voir |
| Voir | Disponible | 476 900€ | A2.1 | Appt. | T3 | 85.2m2 | 2ème | Disponible | 476 900€ Prix foncier 62 000€ Prix travaux 414 900€ | Voir |
| Voir | Optionné | 324 000€ | A2.5 | Appt. | T3 | 46.89m2 | 2ème | Optionné Mais pas encore vendu 😉 | 324 000€ Prix foncier 42 100€ Prix travaux 281 900€ | Voir |