Maison n°M007

Programme "LUMAE"
Prix
242 000€
Type
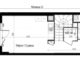
Maison au 0-RDC
Pièces
T3
Surface
71.56 m²
Exposition
Sud
Ville
Nîmes (30000)
Livraison
3ème trimestre 2027
Informations
01 81 80 39 10

Présentation du programme "LUMAE"

Une copromotion CORIM x VINCI immobilier.

À Garons, charmante commune aux portes de Nîmes, découvrez LUMAE, un programme de maisons neuves pensé pour une vie paisible et moderne.
Dans un environnement résidentiel calme, ces maisons individuelles de 3 ou 4 pièces offrent un cadre idéal pour les familles, les actifs ou les investisseurs.

Chaque maison dispose d’un jardin privatif, d’un espace extérieur convivial et d’un agencement intérieur optimisé. Les volumes sont généreux, les pièces baignées de lumière grâce aux larges ouvertures, et les prestations sont de qualité : matériaux durables, finitions soignées, confort acoustique et thermique conforme à la norme RE2020.

La résidence bénéficie d’une situation privilégiée : à proximité immédiate des commerces, écoles, services et grands axes routiers. La gare TGV de Nîmes et l’aéroport sont accessibles rapidement, facilitant les déplacements professionnels ou personnels.

LUMAE Garons conjugue le charme d’un village gardois à la praticité urbaine, dans un cadre verdoyant et sécurisé. Cette résidence offre un lieu de vie rare, où nature, confort et accessibilité se rencontrent.

Un nouveau quartier résidentiel à découvrir sans attendre. Votre maison vous attend à Garons !

Autres logements T3 du programme "LUMAE"

Disponibilité Prix Genre Pièces Surface Étage
Voir
Disponible
242 000€ Maison T3 71.5m2 0-RDC
Voir
Disponible
242 000€ Maison T3 71.29m2 0-RDC
DO NOT CLICK