Prix
255 900€
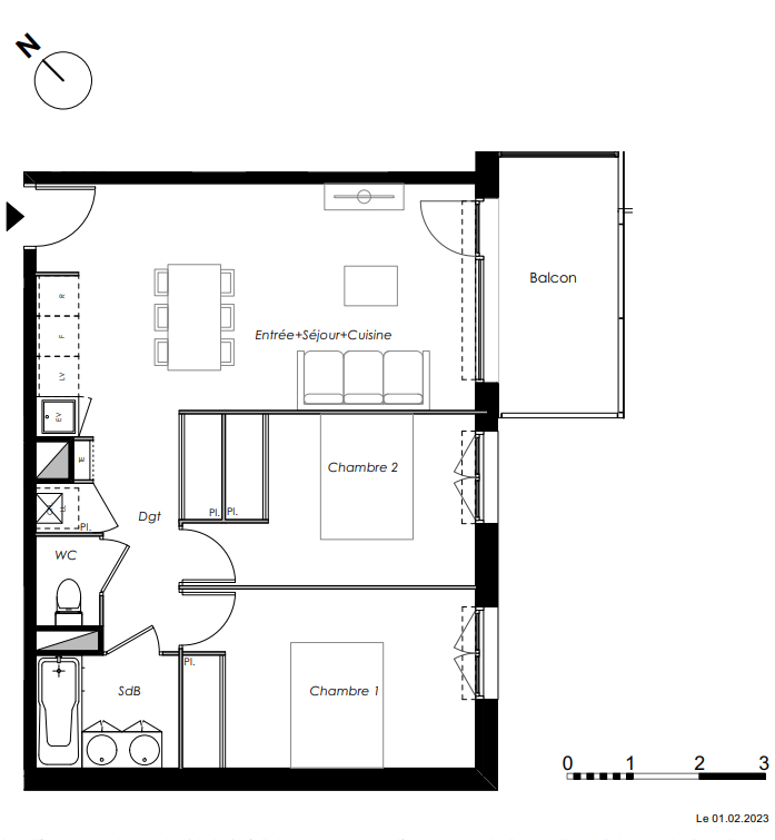
Type
Appt. au 1er
Pièces
T3
Surface
56.81 m²
Exposition
Sud-Est
Ville
Tournefeuille (31170)
Livraison
4ème trimestre 2025
Informations
01 81 80 39 10

Présentation du programme "RESIDENCE SAINT PAUL"

Située dans le haut de Tournefeuille, la Résidence Saint-Paul propose 33 appartements du T2 au T5, dans 3 bâtiments modernes et élégants, et s’intègre parfaitement dans l’environnement existant.
Entièrement clôturée et sécurisée la résidence dispose d’un parking en sous-sol et d’un parking aérien pour recevoir facilement des visiteurs.
De grands espaces verts communs sont également à la disposition des résidents pour partager des moments de convivialité.
Tous les logements profitent d’un extérieur, terrasse et jardin pour les rez-de-jardin, balcon, loggia et terrasse pour les étages.

Autres logements T3 du programme "RESIDENCE SAINT PAUL"

Pas de logements disponibles
DO NOT CLICK