41 882€
180 845€
450€
180 845€
450€
Type
Appt. au 3ème
Appt. au 3ème
Pièces
Studio
Studio
Surface
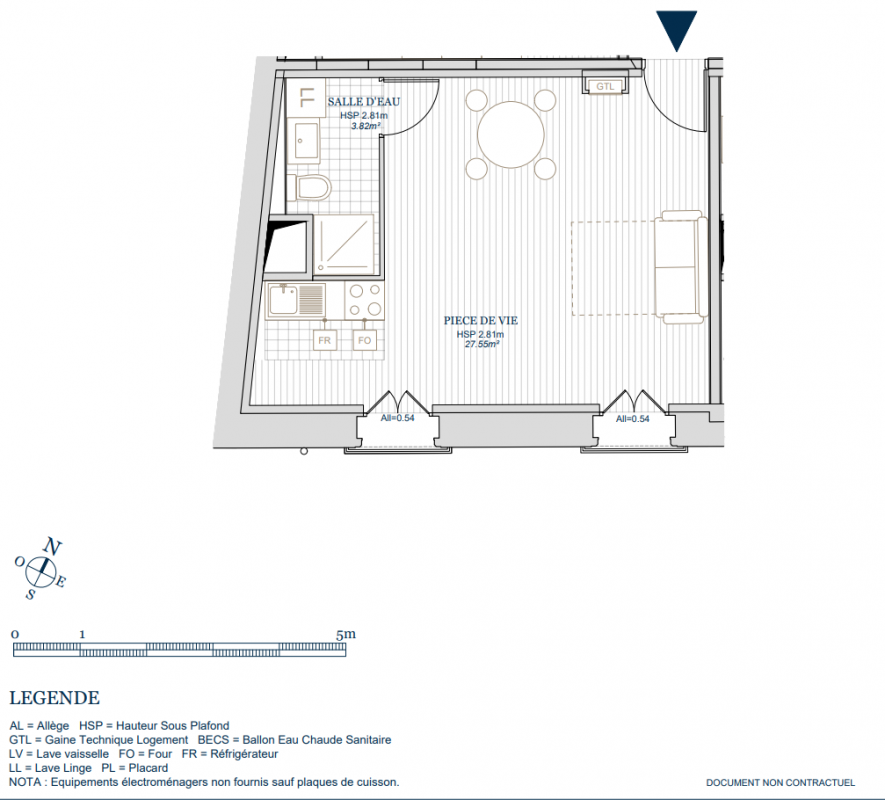
31.37 m²
31.37 m²
Exposition
Sud
Sud
Ville
Béziers (34500)
Béziers (34500)
Livraison
-
-
Informations
01 81 80 39 10
01 81 80 39 10
Présentation du programme "Grand Hôtel Moderne"
Traversée par l’Orb, entourée par la mer Méditerranée et la plaine viticole du Languedoc, Béziers est placée sur la Via Domitia romaine. Alors qu’on y compte plus de 1000 hôtels particuliers, Béziers sait aussi se moderniser : de nombreux aménagements ont été réalisés sur les allées Paul Riquet ou la gare. Située à 10 km de la plage de Valras, c’est un des derniers littoraux méditerranéens non bâtis. Alors qu’elle a été choisie pour y implanter une Giga Factory de piles à hydrogène dans le cadre de la décarbonisation de l’Europe, Béziers a su faire de son passé industriel un véritable atout. L'opération permettra la restauration de 56 logements du T1 au T3 duplex.
Autres logements Studio du programme "Grand Hôtel Moderne"
| Disponibilité | Prix | No | Genre | Pièces | Surface | Étage | Disponibilité | Prix | ||
|---|---|---|---|---|---|---|---|---|---|---|
| Voir | Disponible | 231 517€ | E08 | Appt. | Studio | 32.38m2 | 3ème | Disponible | 231 517€ Prix foncier 44 850€ Prix travaux 186 667€ | Voir |
| Voir | Disponible | 227 656€ | E09 | Appt. | Studio | 31.84m2 | 3ème | Disponible | 227 656€ Prix foncier 44 102€ Prix travaux 183 554€ | Voir |