233 175€ (TVA 20%)
205 000€ (TVA 5.5%)
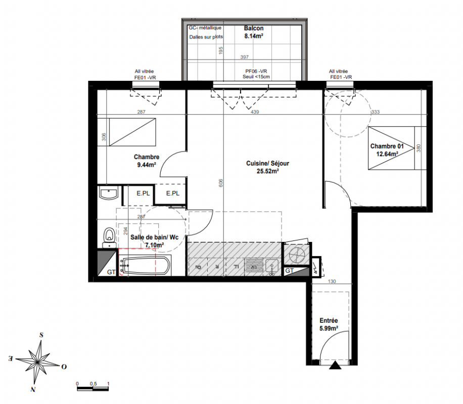
Appt. au 0-RDC
T3
60.69 m²
-
Montpellier (34000)
4ème trimestre 2025
01 81 80 39 10
Présentation du programme "Le Triptyque"
EMMÉNAGEZ DÈS MAINTENANT - CUISINE OFFERTE - Le Triptyque*SITUATION ET CADRE DE VIE :- Résidence neuve idéalement située à proximité immédiate du TRAMWAY.- Accès direct à toutes les commodités : commerces, écoles et transports.- Un poumon vert en ville : 50% de la résidence est dédiée aux espaces verts.VOTRE APPARTEMENT :- Dernières opportunités du STUDIO au 3 PIÈCES (T3).- Grandes ouvertures pour un éclairage naturel optimal.- Bel espace extérieur privatif pour chaque logement (balcon ou terrasse).PLACE DE PARKING incluse pour chaque habitant.LE PLUS PIERREVAL :- DISPONIBILITÉ IMMÉDIATE : emménagez sans attendre !- CUISINE OFFERTE : installation facilitée et économies réalisées.Contactez-nous pour visiter votre futur appartement dès cette semaine ! *Voir conditions auprès de notre conseiller.