225 000€
Appt. au 1er
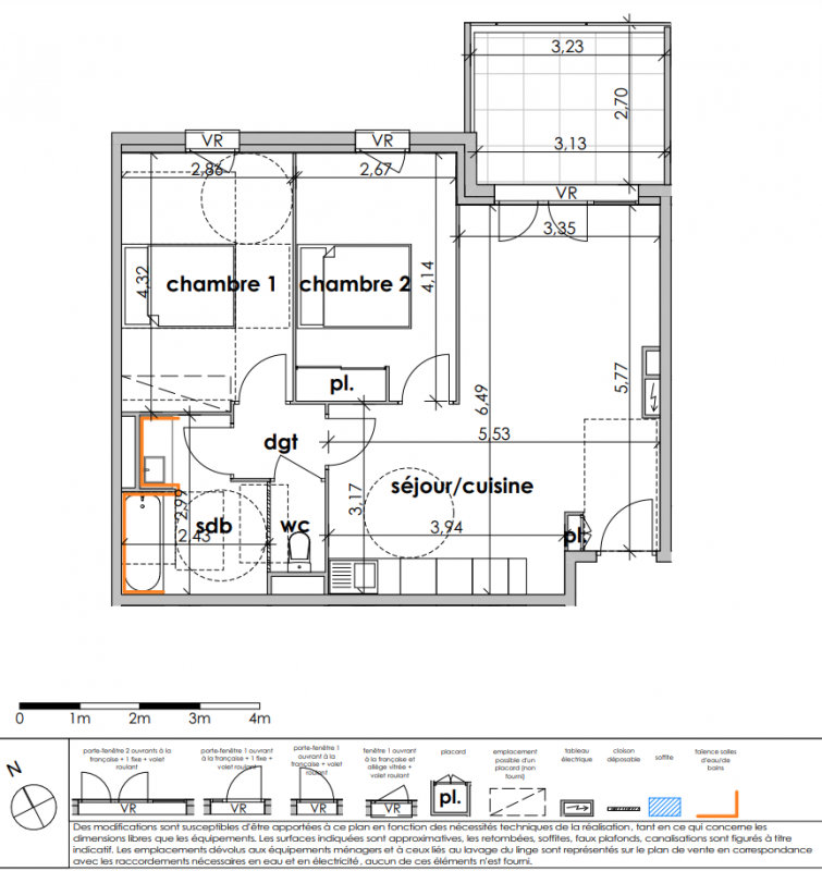
T3
59.69 m²
Nord
Sauvian (34410)
2ème trimestre 2027
01 81 80 39 10
Présentation du programme "Sérène - Lli"
Vous souhaitez y habiter ? Vérifiez votre éligibilité au PTZ avec nos équipes !Vous souhaitez le mettre en location ? Nous vous proposons de bénéficier du dispositif LLI (Logement Locatif Intermédiaire). Contactez nos équipes pour en savoir plus. Sauvian, entre mer et ville, au cœur de l’OccitanieCommune résidentielle très recherchée, à 10 minutes des plages et 15 minutes de Béziers.Proximité immédiate de Béziers, 2e ville de l’Hérault, reconnue pour sa richesse culturelle et économique.Qualité de vie méditerranéenne : environnement paisible, nature préservée, climat agréable toute l’année. Un équilibre idéal entre dynamisme urbain et sérénité littoraleCadre de vie paisible et ensoleillé, au cœur d’un bassin d’emploi attractif et touristique.Forte demande locative grâce à la proximité du littoral, des zones commerciales et du centre de Béziers.Une adresse qui répond parfaitement aux critères de la Location Libre avec Intermédiation : environnement sécurisé, logements bien agencés, desserte et commodités.Commodités et transportsÀ 15 min de Béziers et 10 min des plages.Résidence desservie par la ligne de bus E vers Béziers et Valras-Plage.À moins de 10 min de la gare de Béziers et à proximité de l’aéroport Béziers Cap d’Agde.Commodités et centre-ville de Sauvian accessible à pied ou en vélo. Focus prestations/résidenceRésidence à taille humaine composée de 3 petits bâtiments de 2 étages.Appartements avec balcons, terrasses ou jardins privatifs avec parkings en sous-sol pour tous les logements.Des prestations soignées et un environnement verdoyant. Le + du programmeConformité RE2020 et certification NF Habitat : un gage de qualité pour les investisseurs et une garantie de confort pour les occupants.
Autres logements T3 du programme "Sérène - Lli"
| Disponibilité | Prix | No | Genre | Pièces | Surface | Étage | Disponibilité | Prix | ||
|---|---|---|---|---|---|---|---|---|---|---|
| Voir | Disponible | 226 000€ | C109 | Appt. | T3 | 58.22m2 | 1er | Disponible | 226 000€ | Voir |
| Voir | Disponible | 229 000€ | C209 | Appt. | T3 | 58.22m2 | 2ème | Disponible | 229 000€ | Voir |
| Voir | Disponible | 230 000€ | C113 | Appt. | T3 | 59.69m2 | 1er | Disponible | 230 000€ | Voir |
| Voir | Disponible | 233 000€ | C304 | Appt. | T3 | 60.02m2 Le bon plan | 3ème | Disponible | 233 000€ | Voir |
| Voir | Disponible | 235 000€ | C105 | Appt. | T3 | 58.71m2 | 1er | Disponible | 235 000€ | Voir |