Ce lot n’est plus disponible chez VIANOVA ou est vendu.
Vous pouvez revenir dans 24h pour vérifier le stock à jour ou contacter un conseiller Vianova pour vérifier le stock en direct.
Vous pouvez également continuer votre recherche sur notre site « ici ».
418 000€
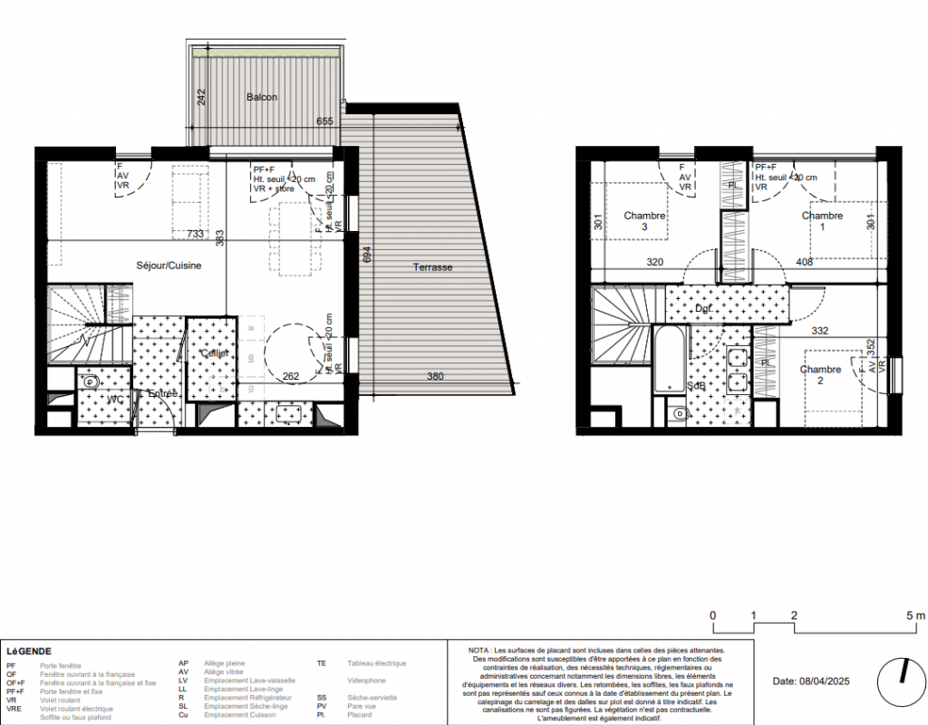
Appt. au 7ème
T4
86.01 m²
-
Sète (34200)
4ème trimestre 2027
01 81 80 39 10
Présentation du programme "Sun’Sète"
Devenez propriétaire de votre appartement neuf à Sète !
Sète est une commune attractive et innovante. Depuis 2017, la ville de Sète déploie une stratégie en matière de Smart City et améliore ainsi la qualité de vie et d’accueil de la presqu’île. Cela concerne notamment la Sécurité (vidéosurveillance, alarmes, gestion des contrôles d'accès), l’éclairage public, les services de mobilité (stationnement, co-voiturage, gestion des conditions de circulation...), les réseaux publics d’information urbaine (panneaux d’information à messages variables) etc.
A l’entrée Est de Sète, sur le secteur au Sud du canal de la Peyrade la résidence Sun’Sète se situe au cœur d’un futur environnement diversifié et favorisant mixité ainsi que développement économique. On retrouvera, à proximité immédiate des logements haut de gammes, des bureaux/coworking, une résidence services séniors et des commerces.
Votre future résidence neuve Sun’Sète se compose de 79 appartements du 2 au 4 pièces et profite de prestations soignées, pensées pour vous : cuisine et salle de bains aménagées et personnalisables, volets roulants motorisés, de vastes espaces extérieurs avec vue vers la mer, les canaux et le Mont saint-clair pour la plupart. Le tout complété par un stationnement en sous-sol.
La résidence suivra la réglementation thermique RE2020 et sera certifiée NF Habitat HQE afin de répondre aux normes récentes en matière de sobriété énergétique
Promoteur national et tout particulièrement présent en Occitanie depuis plus de 25 ans, Vianova vous propose, en tant qu'expert de la promotion immobilière, la résidence Sun’Sète située à Sète. N'hésitez pas à nous contacter pour votre projet de résidence principale ou d'investissement locatif en VEFA à Sète.
Autres logements T4 du programme "Sun’Sète"
| Disponibilité | Prix | No | Genre | Pièces | Surface | Étage | Disponibilité | Prix | ||
|---|---|---|---|---|---|---|---|---|---|---|
| Voir | Archivé | 411 000€ | A706 | Appt. | T4 | 86.69m2 | 7ème | Archivé | 411 000€ | Voir |
| Voir | Archivé | 390 000€ | B306 | Appt. | T4 | 86.07m2 | 3ème | Archivé | 390 000€ | Voir |
| Voir | Archivé | 401 000€ | B406 | Appt. | T4 | 86.78m2 | 4ème | Archivé | 401 000€ | Voir |
| Voir | Archivé | 481 000€ | B706 | Appt. | T4 | 93.09m2 | 7ème | Archivé | 481 000€ | Voir |
| Voir | Archivé | 383 000€ | B206 | Appt. | T4 | 86.28m2 | 2ème | Archivé | 383 000€ | Voir |
| Voir | Archivé | 483 000€ | A702 | Appt. | T4 | 93.35m2 | 7ème | Archivé | 483 000€ | Voir |
| Voir | Archivé | 405 000€ | B606 | Appt. | T4 | 86.2m2 | 6ème | Archivé | 405 000€ | Voir |
| Voir | Archivé | 404 000€ | B701 | Appt. | T4 | 85.13m2 | 7ème | Archivé | 404 000€ | Voir |
| Voir | Archivé | 417 000€ | B707 | Appt. | T4 | 85.76m2 | 7ème | Archivé | 417 000€ | Voir |
| Voir | Archivé | 406 000€ | B702 | Appt. | T4 | 85.45m2 | 7ème | Archivé | 406 000€ | Voir |
| Voir | Archivé | 358 000€ | B703 | Appt. | T4 | 71.01m2 | 7ème | Archivé | 358 000€ | Voir |
| Voir | Archivé | 399 000€ | B506 | Appt. | T4 | 87.36m2 | 5ème | Archivé | 399 000€ | Voir |
| Voir | Archivé | 283 400€ | A206 | Appt. | T4 | 81.31m2 | 2ème | Archivé | 283 400€ | Voir |
| Voir | Archivé | 283 400€ | A406 | Appt. | T4 | 81.31m2 | 4ème | Archivé | 283 400€ | Voir |
| Voir | Archivé | 283 400€ | A506 | Appt. | T4 | 81.31m2 | 5ème | Archivé | 283 400€ | Voir |