Prix
499 000€
Type
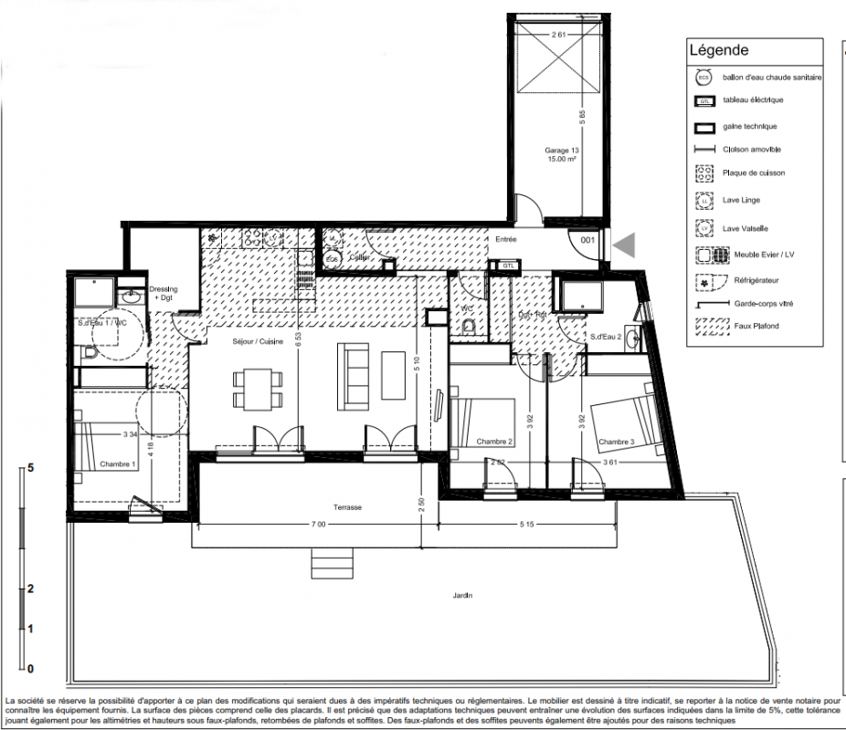
Appt. au 0-RDC
Pièces
T4
Surface
113.6 m²
Le bon plan
Exposition
-
Ville
Saint-Cyprien (66750)
Livraison
4ème trimestre 2027
Informations
01 81 80 39 10

Présentation du programme "BLUE GARDEN"

Pensés comme de véritables lieux de vie, les appartements s'ouvrent sur de belles terrasses ensoleillées, balcons ou jardins privatifs, avec des espaces intérieurs généreux, aux volumes soigneusement étudiés.

Un cadre de vie privilégié
À deux pas du centre commerçant de Saint-Cyprien Village, BLUE GARDEN bénéficie d'un environnement calme et verdoyant, tout en restant à proximité immédiate :
- des plages de la Méditerranée,
- du golf international de Saint-Cyprien,
- du parc de la Prade,
- des équipements culturels et sportifs (piscine, médiathèque, tennis...).

Autres logements T4 du programme "BLUE GARDEN"

Disponibilité Prix Genre Pièces Surface Étage
Voir
Disponible
445 000€ Appt. T4 95.7m2 1er
DO NOT CLICK