Prix
299 900€
Type
Appt. au 2ème
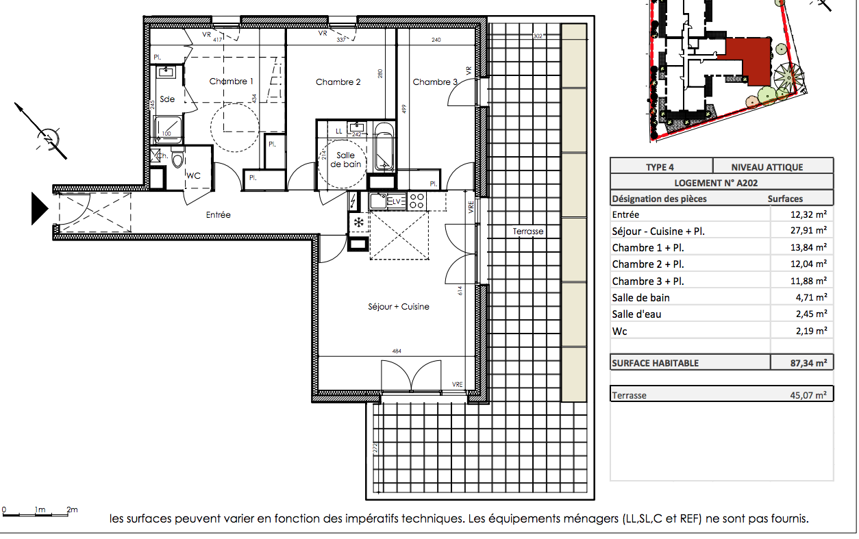
Pièces
T4
Surface
82.26 m²
Exposition
-
Ville
La Chevrolière (44118)
Livraison
2ème trimestre 2026
Informations
01 81 80 39 10

Présentation du programme "Ô Grand-Lieu"

À 10MIN DE NANTES, VIVEZ AU BORD DU LAC DE GRAND LIEU À LA CHEVROLIÈRE ! IDÉAL POUR UN 1ER ACHAT.

Découvrez « Ô Grand-Lieu », résidence intimiste composée de seulement 28 appartements déclinés du 2 au 4 pièces tous dotés d'un espace privatif extérieur.

À 10 min* du périphérique Sud de Nantes, cette résidence est à proximité de toutes les commodités : commerces de proximité, maison de santé, transports en commun, crèche, écoles ou complexe sportif. Tous les atouts sont réunis pour un quotidien radieux. Ô Grand-Lieu, profitant d’un bel espace paysager d’agrément, est entièrement close et sécurisée avec stationnement privatif.

Pour plus d'informations, prenez contact avec notre conseiller !

*Source : Google maps

Autres logements T4 du programme "Ô Grand-Lieu"

Pas de logements disponibles
DO NOT CLICK