171 000€
Appt. au 1er
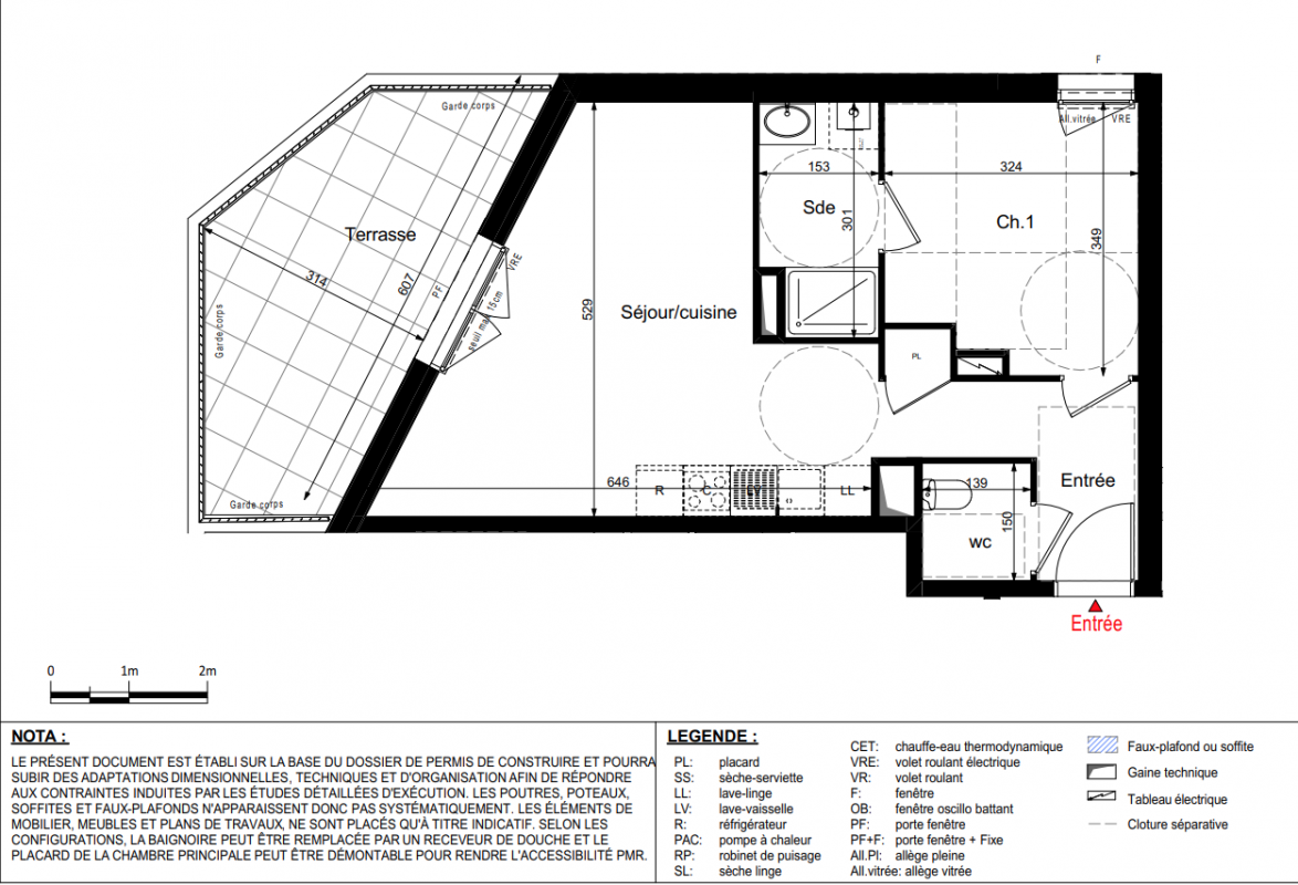
T2
45.2 m²
-
La Haie-Fouassière (44690)
4ème trimestre 2027
01 81 80 39 10
Présentation du programme "LES TERRASSES DE SEVRE"
Les Terrasses de Sèvre : un nouveau programme immobilier neuf à La Haye-Fouassière, aux portes de NantesDécouvrez Les Terrasses de Sèvre, une nouvelle résidence neuve immobilière idéalement située au cœur du vignoble nantais, dans la commune dynamique de La Haye-Fouassière, à seulement 16 minutes de la gare de Nantes grâce à la ligne de tram-train Nantes/Clisson.Une adresse idéale, proche de tout : Située en cœur de bourg, cette résidence vous offre un cadre de vie verdoyant et pratique, à proximité immédiate des commerces, services et transports. Vous bénéficiez ainsi d’un quotidien simplifié, entre ville et nature, avec un accès rapide à la métropole nantaise.Un écrin de verdure sécurisé et moderne : Les Terrasses de Sèvre proposent 35 appartements neufs du T2 au T4, conçus pour offrir un confort optimal, une grande luminosité et un bien-être au quotidien. Chaque logement respecte la réglementation environnementale RE2020, garantissant des performances énergétiques élevées.La résidence est sécurisée et entièrement accessible grâce à la présence d’ascenseurs desservant tous les étages.Des appartements lumineux avec terrasse, balcon ou jardinTous les appartements bénéficient de prestations de qualité et de beaux espaces extérieurs : terrasse, balcon ou jardin privatif pour les rez-de-chaussée. L’orientation de chaque logement a été pensée pour maximiser l’exposition au soleil, dans un environnement paysager soigné.Une architecture élégante, respectueuse de l’environnementLe projet architectural a été conçu pour respecter le site naturel exceptionnel de La Haye-Fouassière. De nombreux arbres ont été conservés, et des cœurs d’îlots paysagers ont été aménagés pour créer une atmosphère intime et conviviale.Les vues panoramiques sur le vignoble nantais ont guidé l’implantation de la résidence, offrant à chaque appartement des perspectives dégagées et apaisantes.La Haye-Fouassière : une commune dynamique au cœur du Vignoble nantaisSituée à seulement 15 km de Nantes, La Haye-Fouassière séduit par son cadre de vie paisible et verdoyant, au cœur du célèbre Vignoble nantais. Forte de ses paysages vallonnés, de ses vins réputés (dont le Muscadet) et de son patrimoine local, la commune offre une qualité de vie remarquable. Elle bénéficie d’une excellente accessibilité grâce à sa gare SNCF desservie par le tram-train Nantes-Clisson, reliant Nantes en seulement 16 minutes.Avec ses commerces de proximité, ses établissements scolaires, ses équipements culturels...
Autres logements T2 du programme "LES TERRASSES DE SEVRE"
| Disponibilité | Prix | No | Genre | Pièces | Surface | Étage | Disponibilité | Prix | ||
|---|---|---|---|---|---|---|---|---|---|---|
| Voir | Disponible | 162 000€ | E102 | Appt. | T2 | 44.3m2 | 1er | Disponible | 162 000€ | Voir |
| Voir | Disponible | 168 500€ | E202 | Appt. | T2 | 44.3m2 | 2ème | Disponible | 168 500€ | Voir |
| Voir | Disponible | 175 000€ | F202 | Appt. | T2 | 45m2 | 2ème | Disponible | 175 000€ | Voir |
| Voir | Disponible | 172 000€ | F203 | Appt. | T2 | 42.6m2 | 2ème | Disponible | 172 000€ | Voir |
| Voir | Disponible | 178 000€ | F205 | Appt. | T2 | 45.2m2 | 2ème | Disponible | 178 000€ | Voir |