Prix
214 900€
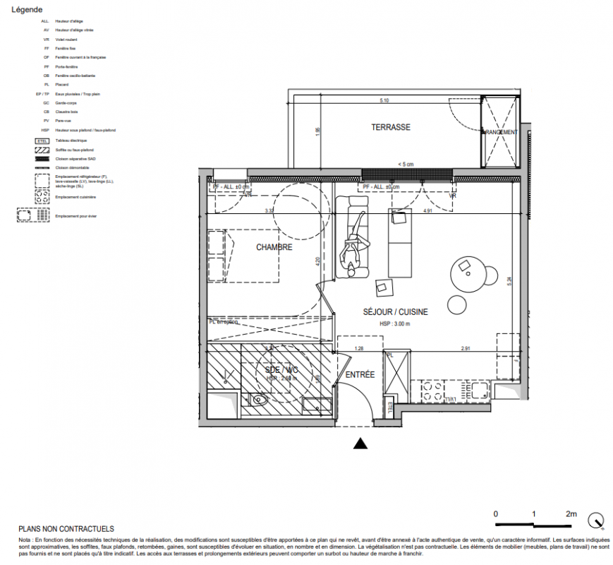
Type
Appt. au 0-RDC
Pièces
T2
Surface
48.3 m²
Exposition
Ouest
Ville
Nantes (44000)
Livraison
4ème trimestre 2026
Informations
01 81 80 39 10

Présentation du programme "NATUREO - ESSENCIA"

OFFRE EXCEPTIONNELLE : Baisse de prix + 0€ frais de notaire* !TRAVAUX EN COURS : EMMÉNAGEZ EN 2026 (résidence ESSENCIA) !Vous aspirez à un nouveau cadre de vie ? Découvrez NATURÉO à l'est de Nantes (rue Henri Loiret). Au sein de nos 2 résidences ESSENCIA ET VERDURA, choisissez votre futur appartement pour habiter : du 2 au 5 pièces, en plain-pied ou en duplex.Un cadre de vie idéal pour votre famille, au cœur d'un écrin de verdure entre vergers et ruisseaux, dans un environnement paisible à quelques pas des fermes urbaines, des écoles, et des équipements sportifs. Chaque appartement bénéficie d'un espace extérieur pour profiter pleinement de la nature omniprésente. Conçus pour votre confort et bien-être, ces logements sont économes en énergie (DPE A, RE2020), parfaits pour un quotidien serein.Pourquoi Choisir NATURÉO ? Environnement naturel : un cadre verdoyant à proximité de toutes les commodités essentielles. Des appartements confortables : espaces lumineux et bien agencés, adaptés aux besoins des familles, couples et seniors. Éco-responsabilité : habitats conçus selon les dernières normes énergétiques pour un mode de vie durable.Saisissez cette opportunité unique de devenir propriétaire dans un quartier où nature et modernité coexistent harmonieusement. Appartements neufs éligibles au Prêt à Taux Zéro, un vrai coup de pouce pour habiter à Nantes ! Contactez-nous dès maintenant pour planifier une visite à notre bureau de vente à Nantes. *Voir conditions sur natureo-nantes.fr

Autres logements T2 du programme "NATUREO - ESSENCIA"

Pas de logements disponibles
DO NOT CLICK