Prix
439 000€
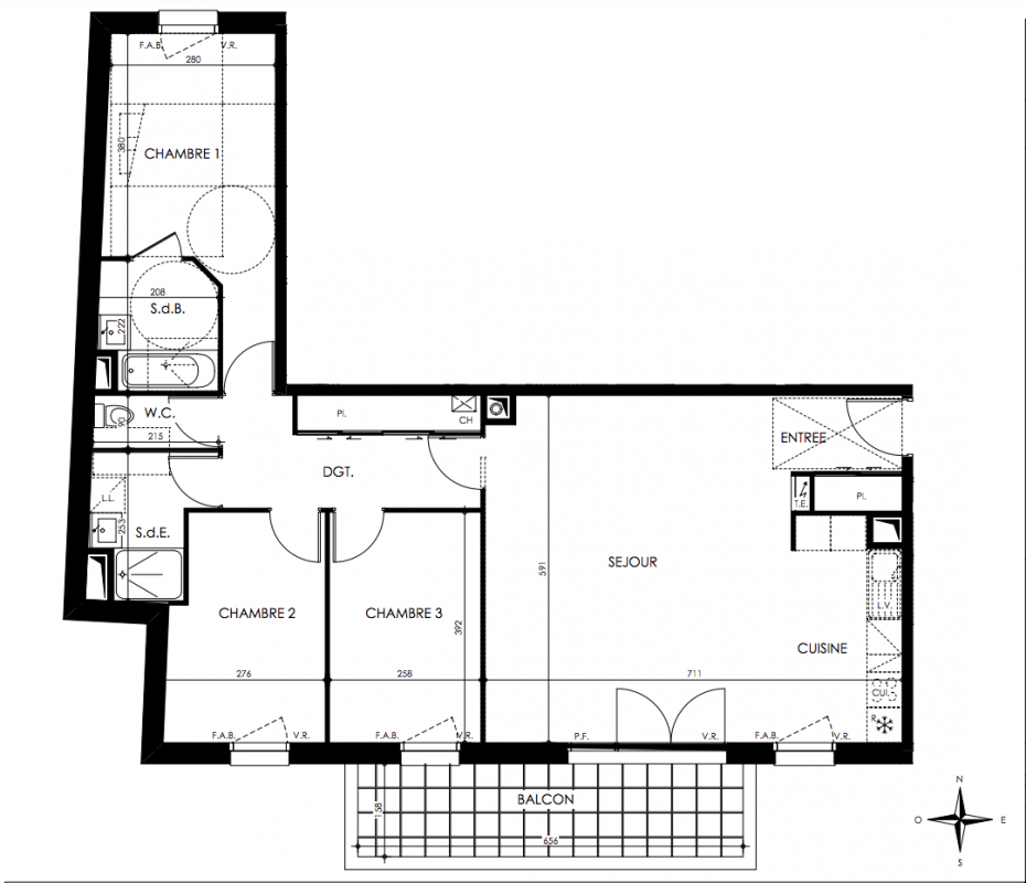
Type
Appt. au 1er
Pièces
T4
Surface
92.18 m²
Exposition
Sud
Ville
Saint-Sébastien-sur-Loire (44230)
Livraison
4ème trimestre 2027
Informations
01 81 80 39 10

Présentation du programme "Cour Enchantée"

Le charme cossu d’une commune prisée
En lisière sud de Nantes, Saint-Sébastien-sur-Loire se distingue par un cadre de vie privilégié, conjuguant tranquillité et dynamisme. Renommée pour la qualité de ses établissements scolaires, la ville attire particulièrement les familles. La vitalité de la commune, très active sur les plans associatifs, culturels et sportifs, accentue son attractivité pour tous les profils de locataires.Grâce à sa proximité immédiate avec Nantes, accessible en seulement 5 minutes par la ligne de Tram-Train avec des passages fréquents toutes les 30 minutes en heures de pointe, Saint-Sébastien-sur-Loire est devenue un lieu de prédilection pour les entreprises. Outre la présence d’industries historiques comme Cassegrain et Novempor, la commune a vu se développer un important tissu économique composé d’entreprises de services, de commerces et d’artisanat, contribuant à la création d’un fort écosystème économique local, que des projets viendront encore renforcer.

Autres logements T4 du programme "Cour Enchantée"

Disponibilité Prix Genre Pièces Surface Étage
Voir
Disponible
409 000€ Appt. T4 77.08m2 3ème
DO NOT CLICK