Prix
920 000€
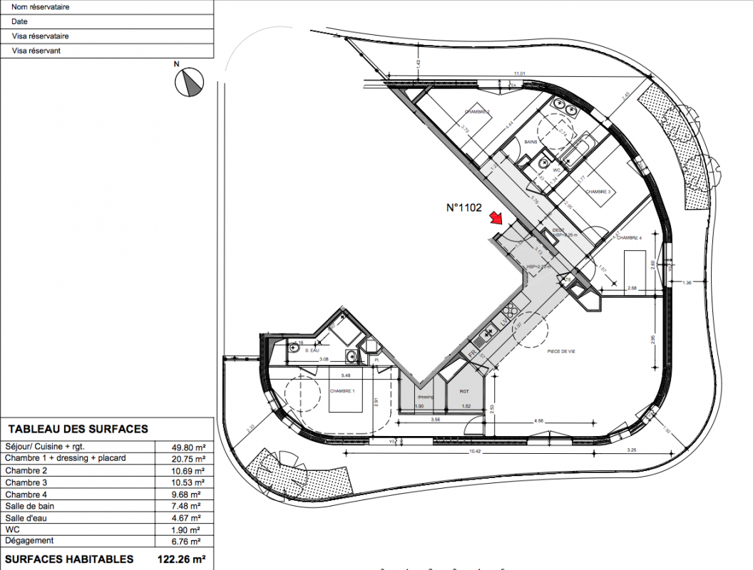
Type
Appt. au 11ème
Pièces
T5
Surface
122.36 m²
Exposition
Sud
Ville
Angers (49000)
Livraison
1er trimestre 2024
Informations
01 81 80 39 10

Présentation du programme "ARBORESCENCE"

Situé au cœur d’Angers, en bord de Maine, ARBORESCENCE est un programme intergénérationnel qui rassemble une Résidence Séniors Services, un espace de co-working, une crèche et un roof-top. Son architecture moderne et audacieuse, son jardin partagé et ses vues imprenables sur la Maine et le centre historique d’Angers avec notamment sa cathédrale en font un bien unique, symbiose parfaite entre dynamisme et sérénité …

Avec un choix d’appartements de grand standing, du studio au 5 pièces aux prestations haut de gamme, en étages élevés (du 6eme au 11eme étage), votre nouveau logement n’attend plus que vous !

Autres logements T5 du programme "ARBORESCENCE"

Pas de logements disponibles
DO NOT CLICK