188 775€
Appt. au 0-RDC
-
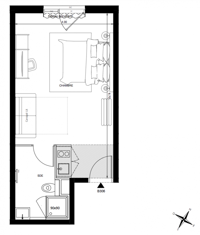
29.47 m²
Nord-Ouest
Nice (06000)
3ème trimestre 2027
01 81 80 39 10
Présentation du programme "Symon(e) By Adonis Nice 4*"
La résidence Symone By Adonis Prestige 4* profite d'un accès rapide par le front de mer au centre de Nice, à quelques minutes à pied de la Promenade des Anglais.
Situé dans le quartier Grand Arénas, ce programme est idéalement placé : il s'agit du 1er centre d'affaires international des Alpes-Maritimes. En 2025, le nouveau Palais des congrès va ouvrir ses portes et en 2028 ce sera le tour du pôle d'échanges multimodal.
Ce pôle multimodal comprendra : une gare ferroviaire (TGV+TER), une gare routière, le tramway, une station de vélos et l'accès direct à l'aéroport par des voies dédiées.
La résidence propose une gamme d'appartements "prestige" (du studio au 2 pièces) pour des séjours originaux autour de l'univers du gaming: idéal pour les séjours d'affaires, le tourisme de courte ou longue durée.
Elle offre de nombreux espaces communs :
RDC DE 480 M2 :
- salle de petit déjeuner de 132 m2
- hall d'accueil/salon de 100 m2
- co-working, salle de sport, salle de réunion
- espace détente et bien-être
- cuisine, bureaux, bagagerie, lingeries
ROOF TOP DE 95 M2 : piscine extérieure, bar, plage, sanitaires
Chaque logement dispose de volumes spacieux, d'un espace de travail, avec une décoration pensée de manière ludique et fonctionnelle.
Autres logements - du programme "Symon(e) By Adonis Nice 4*"
| Disponibilité | Prix | No | Genre | Pièces | Surface | Étage | Disponibilité | Prix | ||
|---|---|---|---|---|---|---|---|---|---|---|
| Voir | Disponible | 180 360€ | A006 | Appt. | - | 28.17m2 | 0-RDC | Disponible | 180 360€ | Voir |
| Voir | Optionné | 168 534€ | A103 | Appt. | - | 25.74m2 | 0-RDC | Optionné Mais pas encore vendu 😉 | 168 534€ | Voir |
| Voir | Optionné | 143 015€ | A105 | Appt. | - | 22m2 | 0-RDC | Optionné Mais pas encore vendu 😉 | 143 015€ | Voir |
| Voir | Optionné | 141 576€ | A106 | Appt. | - | 21.62m2 | 0-RDC | Optionné Mais pas encore vendu 😉 | 141 576€ | Voir |
| Voir | Disponible | 198 167€ | A203 | Appt. | - | 30.95m2 | 0-RDC | Disponible | 198 167€ | Voir |
| Voir | Disponible | 197 857€ | A303 | Appt. | - | 30.9m2 | 0-RDC | Disponible | 197 857€ | Voir |
| Voir | Disponible | 198 167€ | A403 | Appt. | - | 30.95m2 | 0-RDC | Disponible | 198 167€ | Voir |
| Voir | Disponible | 198 167€ | A503 | Appt. | - | 30.95m2 | 0-RDC | Disponible | 198 167€ | Voir |
| Voir | Optionné | 156 238€ | A609 | Appt. | - | 24.04m2 | 0-RDC | Optionné Mais pas encore vendu 😉 | 156 238€ | Voir |
| Voir | Disponible | 187 667€ | B104 | Appt. | - | 29.31m2 | 0-RDC | Disponible | 187 667€ | Voir |
| Voir | Disponible | 182 739€ | B202 | Appt. | - | 28.54m2 | 0-RDC | Disponible | 182 739€ | Voir |
| Voir | Disponible | 188 775€ | B206 | Appt. | - | 29.47m2 | 0-RDC | Disponible | 188 775€ | Voir |
| Voir | Disponible | 184 659€ | B212 | Appt. | - | 28.84m2 | 0-RDC | Disponible | 184 659€ | Voir |
| Voir | Disponible | 182 801€ | B301 | Appt. | - | 28.55m2 | 0-RDC | Disponible | 182 801€ | Voir |
| Voir | Optionné | 188 755€ | B313 | Appt. | - | 29.48m2 | 0-RDC | Optionné Mais pas encore vendu 😉 | 188 755€ | Voir |