340 100€ (TVA 20%)
299 005€ (TVA 5.5%)
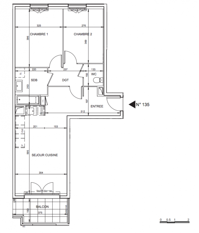
Appt. au 3ème
T3
62.72 m²
Sud
Aubervilliers (93300)
1er trimestre 2028
01 81 80 39 10
Présentation du programme "Programme neuf Aubervilliers (93300)"
NOUVEAUX APPARTEMENTS À DÉCOUVRIR DU 2 AU 4 P. À AUBERVILLIERS ! Achetez votre appartement neuf du studio au 4 pièces avec extérieur et parking !Et en plus grâce à la TVA réduite* à 5,5%, devenez propriétaire pour le même prix que votre loyer !Aubervilliers s'impose comme une ville dynamique en plein renouveau. Profitant d'une proximité immédiate avec la capitale, elle offre un cadre de vie idéal grâce à ses nombreux équipements scolaires et commerces. La ville bénéficie également d'un excellent réseau de transports permettant de rejoindre rapidement les principaux pôles d'activité de la région parisienne.Située au cœur d'un environnement parfaitement connecté, notre nouvelle résidence bénéficie d'une accessibilité optimale. Le métro ligne 7 est accessible en 14 min* à pied, offrant une liaison directe vers Opéra. La gare RER B de La Courneuve Aubervilliers, située à seulement 9 min* en transport, permet de rejoindre facilement le bassin d'emploi de la Plaine Stade de France ainsi que l'aéroport de Paris Charles-de-Gaulle, idéal pour les travailleurs. Au pied de la résidence, une ligne de bus assure des correspondances rapides avec l'ensemble de la ville et ses environs. Côté route, l'autoroute A3 permet de rejoindre le boulevard périphérique en 20 min*.Afin de faciliter le quotidien des familles et de permettre aux parents de suivre au mieux la scolarité de leurs enfants, une crèche, groupe scolaire ainsi qu'un lycée se trouve à seulement quelques minutes à pied.Pensée pour le bien-être de ses habitants, notre nouvelle résidence propose des appartements allant du studio au 4 pièces, tous prolongés par des espaces extérieurs. Un parking en sous-sol offre confort et sécurité à l'ensemble des résidents.Contactez dès maintenant un de nos conseillers pour choisir l'appartement neuf de vos rêves à Aubervilliers !
Autres logements T3 du programme "Programme neuf Aubervilliers (93300)"
| Disponibilité | Prix | No | Genre | Pièces | Surface | Étage | Disponibilité | Prix | ||
|---|---|---|---|---|---|---|---|---|---|---|
| Voir | Disponible | 332 200€ | 112 | Appt. | T3 | 63.83m2 | 1er | Disponible | 332 200€ | Voir |
| Voir | Disponible | 338 600€ | 121 | Appt. | T3 | 67.06m2 | 2ème | Disponible | 338 600€ | Voir |
| Voir | Disponible | 339 000€ | 122 | Appt. | T3 | 63.85m2 | 2ème | Disponible | 339 000€ | Voir |
| Voir | Disponible | 333 300€ | 125 | Appt. | T3 | 62.67m2 | 2ème | Disponible | 333 300€ | Voir |
| Voir | Disponible | 345 800€ | 132 | Appt. | T3 | 63.8m2 | 3ème | Disponible | 345 800€ | Voir |
| Voir | Disponible | 345 800€ | 145 | Appt. | T3 | 62.71m2 | 4ème | Disponible | 345 800€ | Voir |
| Voir | Optionné | 294 000€ | 205 | Appt. | T3 | 64.38m2 Le bon plan | 0-RDC | Optionné Mais pas encore vendu 😉 | 294 000€ | Voir |
| Voir | Disponible | 340 100€ | 207 | Appt. | T3 | 71.82m2 | 0-RDC | Disponible | 340 100€ | Voir |
| Voir | Disponible | 349 200€ | 211 | Appt. | T3 | 71.82m2 | 1er | Disponible | 349 200€ | Voir |
| Voir | Disponible | 344 700€ | 213 | Appt. | T3 | 66.28m2 | 1er | Disponible | 344 700€ | Voir |
| Voir | Disponible | 331 000€ | 215 | Appt. | T3 | 64.37m2 | 1er | Disponible | 331 000€ | Voir |
| Voir | Disponible | 357 200€ | 221 | Appt. | T3 | 71.91m2 | 2ème | Disponible | 357 200€ | Voir |
| Voir | Disponible | 354 900€ | 223 | Appt. | T3 | 66.86m2 | 2ème | Disponible | 354 900€ | Voir |
| Voir | Disponible | 337 900€ | 225 | Appt. | T3 | 64.45m2 | 2ème | Disponible | 337 900€ | Voir |
| Voir | Disponible | 323 100€ | 226 | Appt. | T3 | 62.72m2 | 2ème | Disponible | 323 100€ | Voir |
| Voir | Disponible | 361 800€ | 232 | Appt. | T3 | 66.74m2 | 3ème | Disponible | 361 800€ | Voir |
| Voir | Disponible | 344 700€ | 234 | Appt. | T3 | 64.47m2 | 3ème | Disponible | 344 700€ | Voir |
| Voir | Disponible | 329 900€ | 235 | Appt. | T3 | 62.72m2 | 3ème | Disponible | 329 900€ | Voir |
| Voir | Disponible | 383 400€ | 241 | Appt. | T3 | 73.09m2 | 4ème | Disponible | 383 400€ | Voir |
| Voir | Disponible | 368 600€ | 242 | Appt. | T3 | 66.82m2 | 4ème | Disponible | 368 600€ | Voir |
| Voir | Disponible | 414 100€ | 243 | Appt. | T3 | 77.62m2 | 4ème | Disponible | 414 100€ | Voir |
| Voir | Disponible | 389 100€ | 244 | Appt. | T3 | 72.48m2 | 4ème | Disponible | 389 100€ | Voir |
| Voir | Disponible | 419 800€ | 152 | Appt. | T3 | 72.97m2 | 5ème | Disponible | 419 800€ | Voir |
| Voir | Disponible | 336 700€ | 311 | Appt. | T3 | 64.89m2 | 1er | Disponible | 336 700€ | Voir |
| Voir | Disponible | 351 500€ | 312 | Appt. | T3 | 65.61m2 | 1er | Disponible | 351 500€ | Voir |
| Voir | Disponible | 351 500€ | 315 | Appt. | T3 | 67.71m2 | 1er | Disponible | 351 500€ | Voir |
| Voir | Disponible | 324 200€ | 316 | Appt. | T3 | 60.48m2 | 1er | Disponible | 324 200€ | Voir |
| Voir | Disponible | 344 700€ | 321 | Appt. | T3 | 65.05m2 | 2ème | Disponible | 344 700€ | Voir |
| Voir | Disponible | 360 600€ | 322 | Appt. | T3 | 65.92m2 | 2ème | Disponible | 360 600€ | Voir |
| Voir | Disponible | 359 500€ | 325 | Appt. | T3 | 67.73m2 | 2ème | Disponible | 359 500€ | Voir |
| Voir | Disponible | 329 900€ | 326 | Appt. | T3 | 60.28m2 | 2ème | Disponible | 329 900€ | Voir |
| Voir | Disponible | 395 900€ | 331 | Appt. | T3 | 75.75m2 | 3ème | Disponible | 395 900€ | Voir |
| Voir | Disponible | 367 400€ | 332 | Appt. | T3 | 65.84m2 | 3ème | Disponible | 367 400€ | Voir |