349 200€ (TVA 20%)
307 005€ (TVA 5.5%)
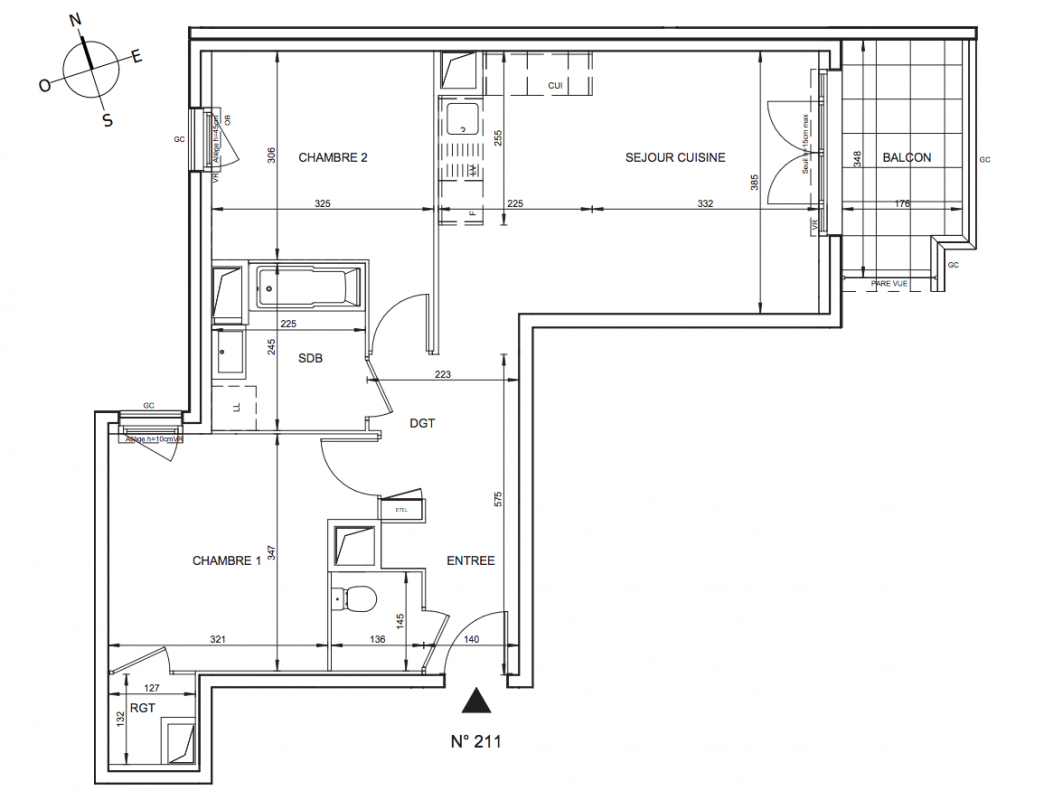
Appt. au 1er
T3
71.82 m²
Est
Aubervilliers (93300)
4ème trimestre 2027
01 81 80 39 10
Présentation du programme "Programme neuf Aubervilliers (93300)"
NOUVEAU à AUBERVILLIERS ! Achetez votre appartement neuf du studio au 4 pièces avec extérieur et parking !Et en plus grâce à la TVA réduite* à 5,5%, devenez propriétaire pour le même prix que votre loyer !Aubervilliers s’impose comme une ville dynamique en plein renouveau. Profitant d'une proximité immédiate avec la capitale, elle offre un cadre de vie idéal grâce à ses nombreux équipements scolaires et commerces. La ville bénéficie également d’un excellent réseau de transports permettant de rejoindre rapidement les principaux pôles d'activité de la région parisienne.Située au cœur d’un environnement parfaitement connecté, notre nouvelle résidence bénéficie d’une accessibilité optimale. Le métro ligne 7 est accessible en 14 min* à pied, offrant une liaison directe vers Opéra. La gare RER B de La Courneuve – Aubervilliers, située à seulement 9 min* en transport, permet de rejoindre facilement le bassin d’emploi de la Plaine Stade de France ainsi que l’aéroport de Paris Charles-de-Gaulle, idéal pour les travailleurs. Au pied de la résidence, une ligne de bus assure des correspondances rapides avec l’ensemble de la ville et ses environs. Côté route, l’autoroute A3 permet de rejoindre le boulevard périphérique en 20 min*.Afin de faciliter le quotidien des familles et de permettre aux parents de suivre au mieux la scolarité de leurs enfants, une crèche, groupe scolaire ainsi qu'un lycée se trouve à seulement quelques minutes à pied.Pensée pour le bien-être de ses habitants, notre nouvelle résidence propose des appartements allant du studio au 4 pièces, tous prolongés par des espaces extérieurs. Un parking en sous-sol offre confort et sécurité à l’ensemble des résidents.Contactez dès maintenant un de nos conseillers pour choisir l'appartement neuf de vos rêves à Aubervilliers !
Autres logements T3 du programme "Programme neuf Aubervilliers (93300)"
| Disponibilité | Prix | No | Genre | Pièces | Surface | Étage | Disponibilité | Prix | ||
|---|---|---|---|---|---|---|---|---|---|---|
| Voir | Disponible | 332 200€ | 112 | Appt. | T3 | 63.83m2 | 1er | Disponible | 332 200€ | Voir |
| Voir | Disponible | 339 000€ | 122 | Appt. | T3 | 63.85m2 | 2ème | Disponible | 339 000€ | Voir |
| Voir | Disponible | 333 300€ | 125 | Appt. | T3 | 62.67m2 | 2ème | Disponible | 333 300€ | Voir |
| Voir | Disponible | 345 800€ | 131 | Appt. | T3 | 67.02m2 | 3ème | Disponible | 345 800€ | Voir |
| Voir | Disponible | 345 800€ | 132 | Appt. | T3 | 63.8m2 | 3ème | Disponible | 345 800€ | Voir |
| Voir | Disponible | 340 100€ | 135 | Appt. | T3 | 62.72m2 | 3ème | Disponible | 340 100€ | Voir |
| Voir | Disponible | 345 800€ | 145 | Appt. | T3 | 62.71m2 | 4ème | Disponible | 345 800€ | Voir |
| Voir | Disponible | 294 000€ | 205 | Appt. | T3 | 64.38m2 Le bon plan | 0-RDC | Disponible | 294 000€ | Voir |
| Voir | Disponible | 344 700€ | 213 | Appt. | T3 | 66.28m2 | 1er | Disponible | 344 700€ | Voir |
| Voir | Disponible | 316 300€ | 214 | Appt. | T3 | 60.7m2 | 1er | Disponible | 316 300€ | Voir |
| Voir | Disponible | 331 000€ | 215 | Appt. | T3 | 64.37m2 | 1er | Disponible | 331 000€ | Voir |
| Voir | Disponible | 357 200€ | 221 | Appt. | T3 | 71.91m2 | 2ème | Disponible | 357 200€ | Voir |
| Voir | Disponible | 354 900€ | 223 | Appt. | T3 | 66.86m2 | 2ème | Disponible | 354 900€ | Voir |
| Voir | Disponible | 323 100€ | 224 | Appt. | T3 | 60.8m2 | 2ème | Disponible | 323 100€ | Voir |
| Voir | Disponible | 337 900€ | 225 | Appt. | T3 | 64.45m2 | 2ème | Disponible | 337 900€ | Voir |
| Voir | Disponible | 323 100€ | 226 | Appt. | T3 | 62.72m2 | 2ème | Disponible | 323 100€ | Voir |
| Voir | Disponible | 361 800€ | 232 | Appt. | T3 | 66.74m2 | 3ème | Disponible | 361 800€ | Voir |
| Voir | Disponible | 329 900€ | 233 | Appt. | T3 | 60.8m2 | 3ème | Disponible | 329 900€ | Voir |
| Voir | Disponible | 344 700€ | 234 | Appt. | T3 | 64.47m2 | 3ème | Disponible | 344 700€ | Voir |
| Voir | Disponible | 329 900€ | 235 | Appt. | T3 | 62.72m2 | 3ème | Disponible | 329 900€ | Voir |
| Voir | Disponible | 383 400€ | 241 | Appt. | T3 | 73.09m2 | 4ème | Disponible | 383 400€ | Voir |
| Voir | Disponible | 368 600€ | 242 | Appt. | T3 | 66.82m2 | 4ème | Disponible | 368 600€ | Voir |
| Voir | Disponible | 414 100€ | 243 | Appt. | T3 | 77.62m2 | 4ème | Disponible | 414 100€ | Voir |
| Voir | Disponible | 389 100€ | 244 | Appt. | T3 | 72.48m2 | 4ème | Disponible | 389 100€ | Voir |
| Voir | Disponible | 419 800€ | 152 | Appt. | T3 | 72.97m2 | 5ème | Disponible | 419 800€ | Voir |